MENU
  • Loading ...
  • Loading ...

About Albany Holiday Park

Book Direct with the Owner at Albany Holiday Park in Milpara with Accommodation Kalgoorlie for all your holiday and travel needs.

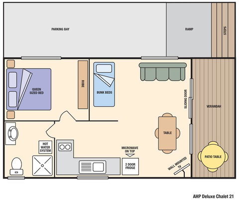
Just 5 minutes’ drive from Albany Airport, Albany Holiday Park offers self-contained accommodations with private patios. It features a games room and a garden with barbecue facilities. Albany Park is 8 minutes’ drive from the Albany city center. Middleton Beach and Mount Clarence Parklands are each a 15-minute drive away. All units are heated, and include a TV and DVD player. Each unit has a spacious dining area and a fully equipped kitchen with a microwave and refrigerator. Guests can enjoy a game of billiards, table tennis or darts in the games room. Holiday Park Albany also offers guest laundry facilities and a children’s playground.
 
Booking.com

Albany Holiday Park

Accommodation Kalgoorlie welcomes Albany Holiday Park, the ideal Milpara WA Holiday outlet for all the family to enjoy. We have made sure that we have thought of everything you would expect from your vacation with many features, click on the email or phone now button to get in touch with the owner.

Is Albany Holiday Park in Milpara your property on Accommodation Kalgoorlie, please claim your listing and subscribe to pay no commission plus update your contact details to receive your phone calls and emails from your clients.


Albany Holiday Park

Click the below to email this business

Email Business

Thank you!

Your enquiry has been submitted

Please fill out the form below to send an enquiry to this business

Accommodation Kalgoorlie displayed beautifully on multiple devices

Unlock the Full Potential of Your Business with
Accommodation Kalgoorlie

  • Rectify inaccuracies in your listing via Accommodation Kalgoorlie
  • Turn on the Call Now Button to directly receive customer calls.
  • Enable the Visit Website Button to drive a continuous flow of traffic to your site.
  • Enable Email Button to effortlessly gather your clients' email addresses.
Claiming or adding your listing not only grants you access to missed call alerts and client emails via Accommodation Kalgoorlie but also connects you with over 500 partner sites. This strategic move amplifies your client engagement and boosts your visibility on Google, social media, and within the QLD Tourism ecosystem

copyright © 2026 Accommodation Kalgoorlie.   All rights reserved.

A B C D E F G H I J K L M N O P Q R S T U V W X Y Z